事例(販売済)

安心安全のハコに自分の住まいをカスタマイズ

大崎広小路の家

※本物件はおかげさまで販売終了いたしました。

 

所在地:東京都品川区大崎4丁目
交通:JR山手線「五反田」駅徒歩8分、「大崎」駅徒歩9分、東急池上線「大崎広小路」駅徒歩2分

写真PHOTO

コンセプトCONCEPT

Introduction

五反田駅・大崎駅・大崎広小路駅の3駅が利用可能な好立地。都心アクセスも、羽田へのアクセスも便利なこの場所に”基地”をつくるような感覚で、戸建てリノベーションにチャレンジしませんか。

 

HOWS Renovation Base、安心安全なハコに自分らしさを実現する仕組みでお届けする戸建てです。そして、洋服をコーディネートするように楽しくリノベーションを楽しめる、toolboxによる内装メニューカタログもご用意しました。

 

ご希望やご予算に合わせたリノベーションが可能

リビタの専属コンサルタントがリノベーションの設計・施工・お引き渡しまでをワンストップでサポート。

ご希望に応じて追加工事のご相談も承ります。
一から自分好みに間取りや素材を考えてフルリベーションすることもできますし、部分的な改修も可能です。

ご希望をお伺いし、理想的な空間づくりをコーディネートいたします。

 

toolboxオプションメニューをご用意

より気軽にリノベーションを楽しんでいただくために、“空間を編集する道具箱”をコンセプトにするtoolboxによるアイテムカタログをご用意しました。

 

フローリングや建具から、壁に付ける棚や照明器具まで豊富なアイテムや工事サービスまで。壁を立てたり、収納を作ったり、パーツを加えたり。家づくりをゼロから考えるのは少し大変だけど、用意されたカタログから選ぶのは、イメージもしやすく気軽に楽しめる。パラパラとカタログをめくりながら、予算に合わせて住みたい家を自分で作っていくことができます。

 

メニューはどれもこだわりのデザインで、ありきたりな内装では満足できない方でもワクワクしてもらえると思います。コーディネートを楽しむように壁やパーツをチョイスして自分だけの家を作ることができます。

 

[toolbox]
内装や外構に関わる素材やパーツ、職人による工事サービスを提供するウェブショップ。内装工事やDIYアイテムの提供を通して住まい手の家づくりをサポートしていく。
https://www.r-toolbox.jp/

 

プランPLAN

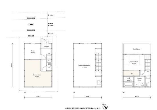
現況Plan (土地:71.54㎡(登記簿)、建物面積:89.10㎡)
築13年と比較的築が浅い地上3階建ての木造戸建てで、現状ですでに大らかな空間構成となっています。元々、前所有者の方が事務所として一部利用していた戸建でした。2階の大きな空間を中心に、住居としてだけでなく、SOHO利用などもおすすめです。また、3階からは住宅地だけではなく都会の景色を眺められます。

地図MAP

大崎広小路エリアは、五反田駅や、大崎駅からも徒歩圏で買い物が充実し利便性が高いエリアです。一方、山手通りから一本中に入ると、路地などがある昔からの住宅街。住みやすさが共存する街です。
大崎広小路駅近くの高架下は、3月に新たな空間に生まれ変わり、自転車を切り口としたライフスタイルを提案する店舗やクラフトビールバーなどがオープン。新旧が入り混じる、いま注目の街です。
「大崎広小路の家」は、山手通りから1本中に入った静かな住宅街に位置してします。

■JR山手線「五反田」駅徒歩8分、「大崎」駅徒歩9分
■東急池上線「大崎広小路」駅徒歩2分

<販売終了につき地図は非掲載としております>

これからの住まいのありかたにふさわしい選択
~次世代へ住み継ぐべき社会的資産へ。資産性を高めるしくみ~Assets

厳選した優良な一戸建てに対し、第三者機関を活用した調査と、それにもとづく修繕を行います。
普遍的な不動産価値と、安心・安全を担保する工事としくみによってこれから先も永く住み継ぐことができる資産性を備えた住まいです。

■既存設備検査を実施

■フラット35S適合(予定)

■既存住宅売買かし保険へ加入
検査と保証がセットになった保険制度に加入、それによって既存住宅の住宅ローン控除の利用が可能です。
(最大400万円・10年間)

■アフターサービス保証付

■長期修繕計画の策定

■新築時中間検査済合格証あり

■予定工事内容
・電気設備調査・是正工事
・給排水設備 調査・是正工事
・外壁防水工事
・屋根ルーフバルコニー防水工事
・階段・浴室手すり新設
・床下点検口設置
・防蟻施工
・室内クリーニング実施 etc.

物件概要OUTLINE

物件名称
大崎広小路の家
所在地(住居表示)
東京都品川区大崎4丁目
交通
JR山手線「五反田」駅徒歩8分、「大崎」駅徒歩9分
東急池上線「大崎広小路」駅徒歩2分
権利形態
土地:所有権、建物:所有権
構造・工法・規模
木造陸屋根・3階建
販売価格
----万円
敷地面積
71.54㎡(登記簿)(私道部分12.75㎡含む)
※別途、公衆用道路26.00㎡のうち持分8分の1あり
建物面積
89.10㎡(1F:32.40㎡、2F:32.40㎡、3F:24.30㎡)
私道負担面積
26.00㎡(173-10部分)、12.75㎡(173-14道路部分)
接道・道路幅員
北東側幅員約3.0mの私道に約6.4m接道
主たる設備の概要
電気/東京電力、ガス/東京ガス、水道/東京都水道局
地目
宅地
用途地域
第1種住居地域
建ぺい率・容積率
60%・300%
建築年月
平成17年2月新築
リノベーション工事会社
--
リノベーション工事竣工
--
現況
成約済
引渡し
--
取引態様
売主
photo
上野智博(ReBITA)
更新日
2018/07/23
次回更新予定日

売主・広告主:株式会社リビタ
宅地建物取引業者免許 東京都知事(3)第84602
一級建築士事務所 東京都知事第51167
(社)東京都宅地建物取引業会会員
東京都目黒区三田一丁目12番23号
TEL 03-5656-0080

お問い合わせCONTACT

株式会社リビタ
担当: 鈴木(すずき)
営業時間
10:00-19:00
定休日
火・水・祝
電話
0800-300-1296(フリーコール)
メール
fs@rebita.co.jp

おすすめの物件情報を見る