※本物件の販売は終了しました。
所在地:東京都杉並区上荻3丁目
交通:JR中央線『西荻窪』駅徒歩15分、『荻窪』駅徒歩16分
写真PHOTO
コンセプトCONCEPT
パートナーPARTNER
プランPLAN

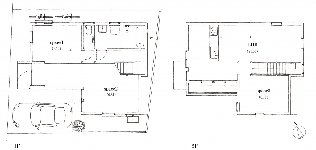
Plan (土地:88.53㎡・建物:85.52㎡)
1階も2階もいまはそれぞれワンルームのハコ。
構造体である柱や梁、床の段差、トップライト越しに1階までおちる光、丁寧にデザインされた構造用合板の壁面など、ここから手を加えていく手がかりにあふれています。

地図MAP
駅を中心にいくつもの商店街が連なり、古い店と新しい店が共存し独特の文化が育まれている街。骨董道具品店や古本屋・カフェなどがたくさんあることでも有名。吉祥寺へも自転車圏内です。
<販売終了につき地図は非掲載としております>
これからの住まいのありかたにふさわしい選択、資産性を高めるしくみAssets
■現行の建築基準法に適合した耐震性能
構造安全性については、耐震診断を実施し、補強工事を実施。現行法に適合した性能を確保しています。(耐震適合証明書取得予定)
■2020年から新築で義務化される予定の断熱性能
全開口部をペアガラスサッシへの交換、外壁・屋根面等の断熱改修を実施しています。その上で、EU各国では不動産取引の際に取得が義務化されている「家の燃費性能」を表示時する証明書(エネルギーパス)を発行、それによる2020年から新築で義務化される可能性ある「次世代省エネルギー基準」を上回る性能を確保しています。
■既存住宅売買かし保険へ加入
検査と保証がセットになった保険制度に加入、それによって既存住宅の住宅ローン控除の利用が可能です。(最大400万円・10年間)
■第三者機関の建物検査を実施(フルスケルトン検査)
優良な既存建物(ストック)を、第三者機関による検査を経て、修繕、再生しています。
■住宅履歴情報の蓄積、長期修繕計画の策定
(社)リノベーション住宅推進協議会の基準にもとづき、検査・工事についての情報や長期修繕計画を住宅履歴として蓄積できるサービスの利用が可能です。























